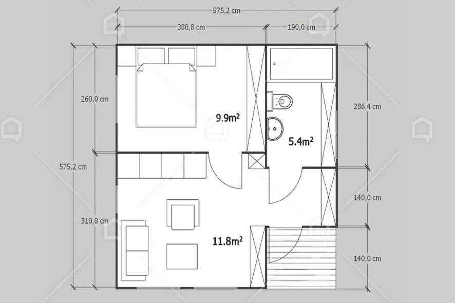
"Urmia XL" est une maison d'été en bois d'aspect traditionnel avec un toit à deux pentes. Cette maison d'été peut être confortablement utilisée pour le repos, le travail ou les loisirs. Selon le plan standard de cette maison d'été, elle est conçue pour une ou deux personnes. La maison dispose d'une chambre de 10 m², d'une salle de bains, d'un couloir et d'un plan ouvert pour la cuisine et le salon. À l'entrée de cette maison de vacances en bois "Urmia XL", il y a une petite terrasse (3 m²) sous le toit. La terrasse ne décore pas seulement la façade avant, mais crée également un sentiment de sécurité et protège de la pluie, du vent ou du soleil intense. La surface totale de la maison d'été et de la terrasse est d'un peu plus de 33 m². Ce projet est un excellent choix pour les week-ends, les vacances ou les séjours prolongés d'une petite famille. Que vous préfériez un design traditionnel ou moderne, cette maison d'été est agréable pour tous. C'est une maison d'été polyvalente pour ceux qui ne peuvent tout simplement pas choisir une seule et unique option. La maison d'été "Urmia XL", comme toutes les autres maisons que nous concevons et construisons, peut être modifiée et changée selon les souhaits de chacun ! Dites-nous à quoi devrait ressembler votre maison ! Toutes les visualisations des projets sur le site et les attributs de la maison qui y sont utilisés sont à des fins commerciales uniquement et ne peuvent être considérés comme un exemple incontestable du projet.











